Final year project walkthrough

3D Views

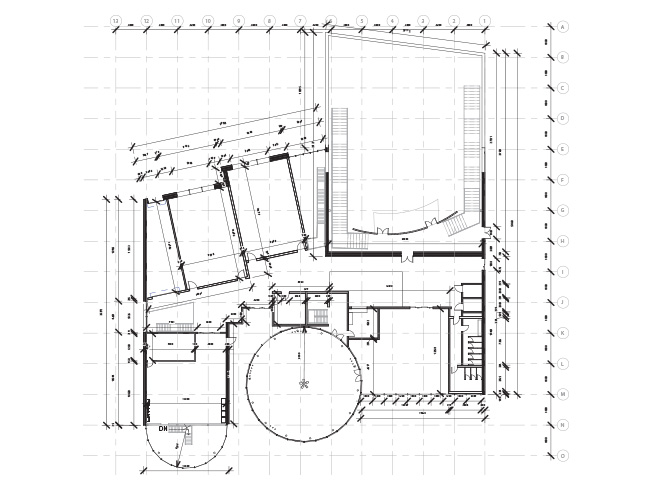
First Floor Setting Out Plan

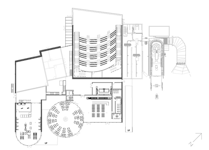
Ground Floor Fit Out Plan
Alpine Centre completed as part of dissertation project, created using Revit and Dynamo, visuals created in Twinmotion and Unreal Engine
Final year project walkthrough
3D Views
First Floor Setting Out Plan
Ground Floor Fit Out Plan